Zu Vermieten €938 - Bürofläche
Objektbeschreibung
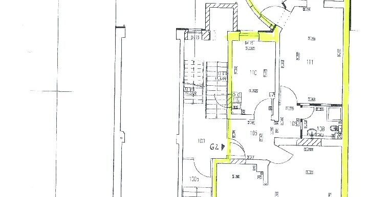
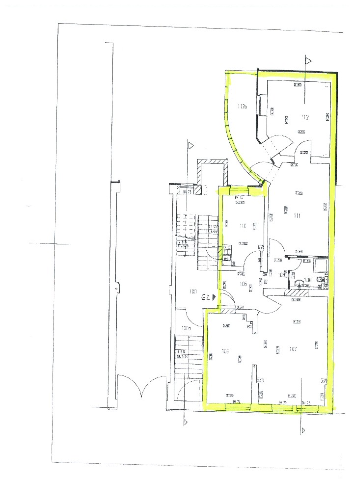
Die Büro- bzw. Praxisräume befinden sich im Erdgeschoss eines historisch erhaltenen Wohn- und Geschäftshauses. Es stehen fünf Zimmer zur Verfügung, wobei ein Zimmer derzeit als Personalraum mit Kleinküche genutzt wird. Weiter hat die Einheit zwei Flurbereiche, ein Duschbad und einen Wintergarten. Im großen Hofbereich, der durch eine Tordurchfahrt von der Mecklenburgstraße erreichbar ist, stehen Parkplätze (je 80,00 EUR/Monat) zur Verfügung. Ein Kellerraum mit 60 m² kann zusätzlich angemietet werden.
Lage
Das Wohn- und Geschäftshaus befindet sich in der Schweriner Innenstadt zwischen Feldstadt und Altstadt im unmittelbaren Umfeld des Schweriner Schlosses am Burgsee auf Höhe der Burgseegalerie. Die Heinrich-Mann-Straße verbindet die Goethestraße mit der Graf-Schack-Allee am Burgsee des Schlosses. Ursprünglich hieß die Heinrich-Mann-Straße Orleanstraße, einer Stadt an der Loire und war mit den siegreichen Gefechten der mecklenburgischen Truppen während des Deutsch-Französischen Krieges 1870/71 verbunden.
Fußläufig ist die absolute City um den Marienplatz, mit seinen Einkaufstempeln, dem Schlossparkcenter, der Marienplatzgalerie und den Schweriner Höfen, in 3 Minuten zu erreichen. Hervorzuheben ist die gute Verkehrsanbindung durch Bus und Straßenbahn sowie die An- und Abfahrt mit PKW und das Stellplatzangebot.
Ausstattung
Stuckdecken und historische Türen, Parkett, Fliesen, Duschbad, Wintergarten
Sonstiges
Der Energieausweis befindet sich in der Erstellung.
Details
- Zimmer insgesamt: 5
- Heizungsart: Zentralheizung
- Anzahl Etagen: 4,0
- Zusatzinformation zur Lage: Altstadt
- Kaltmiete: 938 €
- monatl. Betriebs-/Nebenkosten: 100 €
- monatl. Heizkosten: 200 €
- Courtage: 2.38 Monatsmieten
- Kaution: 3.000 €
- Nutzfläche: 117 m²
- Gesamtfläche: 117 m²
- Bürofläche: 117 m²
- Sonstige Fläche: 60 m²
- Art der Ausstattung: gehoben
- Befeuerung: Gas
- Bodenbelag: Fliesen, Parkett
- Immobilie ist verfügbar ab: sofort
















