Zu Vermieten €1.175 - Bürohaus
Objektbeschreibung
Das zu vermietende Gewerbeobjekt mit Büroräumen, Lager und Stellplätzen befindet sich in Schwerin-Neumühle.
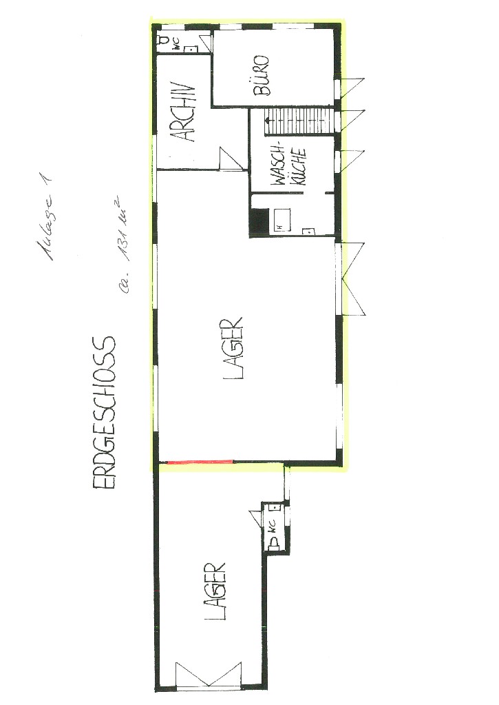
Im Erdgeschoss befindet sich ein Büro mit WC und separatem Eingang, eine ehemalige Waschküche, ein 112 m² goßes, beheizbares Lager mit Rolltor und ein Archiv. Gesamtfläche ca. 131 m².
Das Obergeschoss besteht aus 6 Räumen, einer Küche mit EBK, einem WC und einem Lager/Archiv mit einer Gesamtfläche von ca. 155 m². Der Zugang erfolgt über einen separaten Eingang. Insgesamt stehen ca. 8 Stellplätze zur Verfügung, die über einen separaten Stellplatzmietvertrag ( je Stellplatz 40,- EUR) angemietet werden können.
Lage
Das zu vermietende Objekt befindet sich auf einem großen Grundstück im Stadtteil Schwerin-Neumühle mit optimaler Anbindung an die Umgehungsstrasse. Es sind nur ca. 1,5 km zum Stadtzentrum. Ergänzt wird die sehr gute Lage durch eine sehr gute Infrastruktur und eine optimale Busanbindung.
Ausstattung
Lager mit Betonfussboden, Büros mit Teppich, Gasheizung, EDV-Verkabelung
Sonstiges
Ein Energieausweis ist in Erstellung.
Details
- Zimmer insgesamt: 7
- Anzahl Stellplätze: 3
- Heizungsart: Zentralheizung
- Anzahl Etagen: 2,0
- Zusatzinformation zur Lage: Schwerin-Neumühle
- Kaltmiete: 1.175 €
- monatl. Betriebs-/Nebenkosten: 250 €
- monatl. Heizkosten: 250 €
- Preise zuzüglich Mehrwertsteuer: ja
- Courtage: 2.38 Monatsmieten
- Kaution: 3.000 €
- Anzahl Außenstellplätze: 3
- Außenstellplatzmiete: 40 €
- Nutzfläche: 286 m²
- Gesamtfläche: 286 m²
- Lagerfläche: 112 m²
- Bürofläche: 174 m²
- Art der Ausstattung: Standard
- Befeuerung: Gas
- Bodenbelag: Fliesen, Teppich
- Stellplatzart: Freiplatz
- Immobilie ist verfügbar ab: 31.07.2026














