Zu Verkaufen €498.000 - Einfamilienhaus
Objektbeschreibung
Das Stadthaus ist in einem modernen Baustil einer städtischen Bebauung entworfen und gebaut worden. Es verfügt über ca. 164,25 m² komfortabler Wohn- und Praxisfläche verteilt auf drei Etagen. Hier vereinen sich Wohnen und Arbeiten unter einem Dach.
Das Erdgeschoss teilt sich auf in den Eingangsbereich mit sich anschließendem Flur, dem Gäste-WC mit Hauswirtschaftsbereich, dem Empfang (auch geschlossen als Zimmer nutzbar), sowie dem hellen zur Südseite ausgerichteten Praxiszimmer und der Küche. Der Küchenbereich ist so bemessen, dass auch noch ein Essbereich Platz findet.
Das 1. Obergeschoss, über eine Holztreppe erreichbar, verfügt über drei Schlafzimmer, sowie einem Bad mit Wanne und Dusche.
Das darüber liegende Dachgeschoss, teilt sich auf in ein großzügiges Wohnzimmer mit Ausgang zur ca. 27 m² großen Dachterrasse, einem weiteren Bad mit ebenerdiger Dusche und einem Abstellraum. Der Wohnraum ist durch seine Südausrichtung und seiner Höhe von 6 Metern über dem Straßenniveau wunderbar lichtdurchflutet.
Zwei Stellplätze befinden sich jeweils links und rechts neben dem Stadthaus auf dem Grundstück.
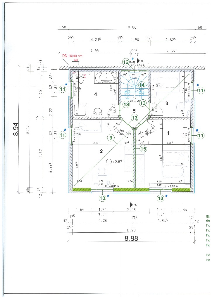
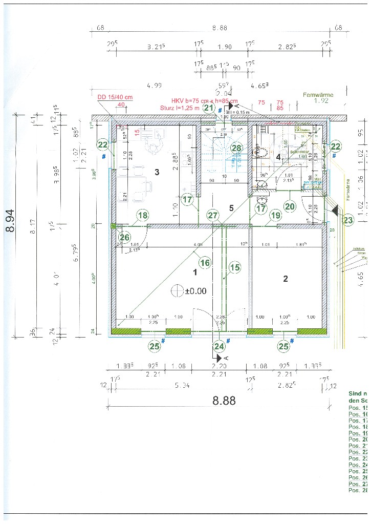
EG: Eingangsflur, Gä-WC mit HWR, Küche mit Essbereich, Empfang, Praxisraum, ca. 62.8 m² Wfl.
OG: Flur, Wannenbad, 3 Schlafzimmer, ca. 60.95 m² Wfl.
DG: Gä-WC, 1 Zimmer, Abstellraum, Skydeck (Dachterrasse), ca. 52.78 m² Wfl. incl. 50% anteilige Terrassenfläche
Lage
Das Einfamilienhaus befindet sich im idyllischen Friedrichsthal am westlichen Rand Schwerins, nahe des klaren Neumühler Sees. Der Friedrichsthaler Wald, mit seinen schönen Laufwegen, ist für den aktiven Läufer oder Fahrradfahrer ein ideales Terrain. Der Neumühler See ist ca. 900 m entfernt.
Friedrichsthal ist an den öffentlichen Nahverkehr angeschlossen. Einkaufsmöglichkeiten befinden sich in unmittelbarer Nähe mit einem ALDI-Markt in Friedrichsthal, sowie diversen Einkaufsläden und -märkten am Margaretenhof sowie im Stadtteil Lankow. Mit der vorhandenen Busverbindung und weiterführender Straßenbahn, ist man in 15 Minuten in der Innenstadt. Über die Umgehungsstraße hat man eine gute Anbindung zur A 24 in Richtung Berlin/ Hamburg sowie in Richtung Norden zur Ostsee.
Ausstattung
– Massivbau gemäß Energieeinsparverordnung
– Fassade gemischt in Strukturputz weiß und Klinker rotbraun, inklusive Wärmeverbundsystem
– Türen und Fenster (3-fach verglast und einbruchhemmend) in Kunststoff, Wohn- und Schlafräume zur Südseite mit Rollläden, elektr. bedienbar
– Bäder und HWR auf den Böden gefliest, die Wände in Weiß gestrichen
– Designbodenbeläge in Klickvinyl
– offene Treppen aus Buchenholz
– Fernwärme, Fußbodenheizung, Sanitärobjekte Villeroy und Boch weiß, Badewanne und Dusche vorhanden, Gä-WC im Erdgeschoss, frostsichere Außenzapfstelle für Kaltwasser
– dezentrale Lüftungsanlage
– zeitgemäße Elektroinstallation in allen Räumen, Schalterprogramm Busch- Jaeger Balance SI
– Röhrenspaninnentüren in Weiß
– Dachterrasse mit Belegung und umlaufender Geländerkombination in Edelstahl und Glas
– 2 PKW- Stellplätze
Details
- Grundstücksfläche: 196 m²
- Zimmer insgesamt: 5
- Anzahl Stellplätze: 2
- Heizungsart: Fernheizung, Fußbodenheizung
- Anzahl Etagen: 3,0
- Zusatzinformation zur Lage: Friedrichsthal
- Kaufpreis: 498.000 €
- Courtage: 3.57 %
- Anzahl Außenstellplätze: 2
- Separate WCs: 2
- Terrassen: 1
- Art der Ausstattung: gehoben
- Befeuerung: Fernwärme
- Bodenbelag: Fliesen, PVC
- Badausstattung: Dusche, Badewanne, Fenster im Badezimmer
- Stellplatzart: Freiplatz
- Baujahr: 2022
- Zustand: neuwertig
- Immobilie ist verfügbar ab: sofort


















