Zu Verkaufen €200.000 - Einfamilienhaus
Objektbeschreibung
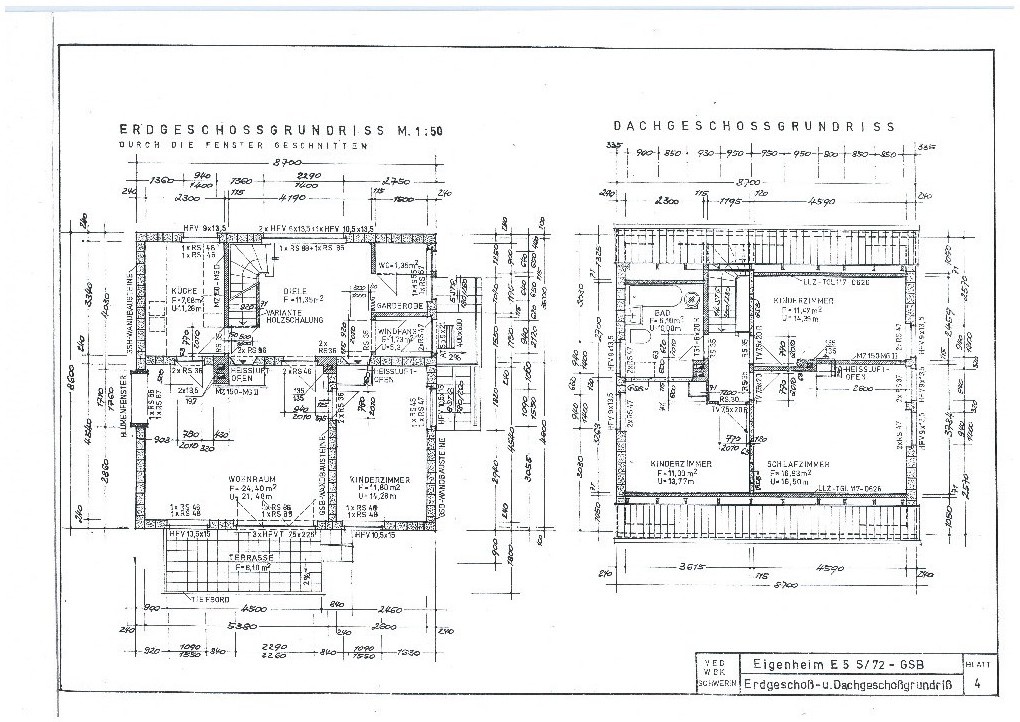
Über den Windfang gelangt man in die geräumige Diele, von der aus man linkerhand in ein kleines Zimmer, Wohnzimmer, geradeaus in die Küche und rechterhand das Gäste- WC betritt. Das Wohnzimmer hat einen Austritt auf die Südterrasse. Von der Terrasse aus gelangt man über eine Treppe auf das mit Rasen angelegte Grundstück.
Im Dachgeschoss befinden sich drei Schlafzimmer und ein Vollbad.
Das Dach wurde ca. 1995 neu eingedeckt. In diesem Zuge wurde auch der Westgiebel mit einer Wärmedämmung versehen.
Das Kellergeschoss ist über eine massive Treppe in der Diele erreichbar.
Im Keller befindet sich eine Waschküche, Werkstatt, Duschbad, ein großer Raum, Heizraum mit Öllager und die Tiefgarage.
Das Grundstück ist überwiegend mit Rasen und einigen Ziergehölzen angelegt. Ein Mähroboter sorgt für kurzen Rasenschnitt. Komplettiert wird alles durch ein Gewächshaus, Pavillon, Schuppen mit zusätzlicher Lagerfläche für Kaminholz sowie ein Carport.
EG: Windfang, Diele, Gäste- WC, Zimmer, Wohnzimmer, Küche, Wfl. ca. 58,3 m²
DG: Flur, 3 Schlafzimmer, Bad mit Wanne und Dusche, Wfl. ca. 45,5 m²
KG: Flur, Werkstatt, Heizraum, Waschküche, Zimmer, Nfl. ca.54,7 m²
Lage
Die Klosterstadt Rehna, bekannt nach ihrem namenhaften Kloster aus dem 13 Jahrhundert, ist eine Kleinstadt im Landkreis Nordwestmecklenburg in Mecklenburg-Vorpommern. Sie ist Verwaltungssitz des gleichnamigen Amtes und hat ca. 5500 Einwohner. Nach Lübeck, Wismar und Schwerin sind es ca. 30 Fahrkilometer. Neben einer Realschule mit Grundschule, Ärzte und Apotheke, bietet Rehna verschiedene Einkaufsmöglichkeiten. Stündliche Verbindungen der ODEG bringen Sie vom Bahnhof Rehna nach Schwerin.
Ausstattung
Ölheizung, Kamin, Fußbodenheizung im Bad und Küche, Auslegeware, Fliesen, PVC, Laminat, EBK, Gäste- WC, Badewanne, Dusche im OG, Dusche im Keller, Werkstatt, Terrasse, Schuppen, Gewächshaus, Tiefgarage, Carportstellplatz, Außenjalousien, Markise, Mähroboter, Glasfaser
Details
- Grundstücksfläche: 604 m²
- Zimmer insgesamt: 5
- Anzahl Stellplätze: 2
- Heizungsart: Fußbodenheizung
- Anzahl Etagen: 3,0
- Zusatzinformation zur Lage: Nordwestmecklenburg
- Kaufpreis: 200.000 €
- Courtage: 3.57 %
- Anzahl Carport-Stellplätze: 1
- Anzahl Garagenstellplätze: 1
- Nutzfläche: 55 m²
- Terrassen: 1
- Art der Ausstattung: Standard
- Befeuerung: Öl
- Bodenbelag: Fliesen, Teppich, Laminat, Linoleum
- Badausstattung: Dusche
- Stellplatzart: Garage, Carport
- Baujahr: 1973
- Immobilie ist verfügbar ab: sofort
















