Zu Vermieten €2.100 - Etagenwohnung
Objektbeschreibung
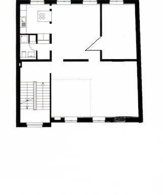
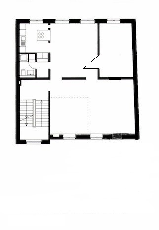
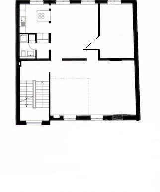
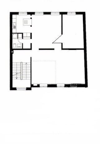
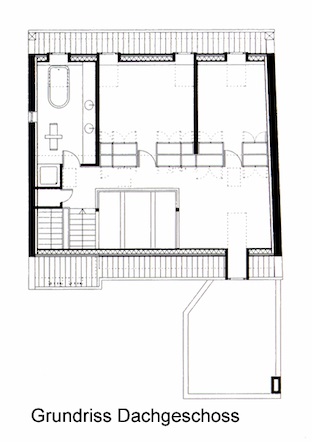
Im 2. Obergeschoss besitzt die Wohnung einen offenen, großzügigen Wohn- und Küchenbereich. Neben der Einbauküche hat man Platz zur Einrichtung eines Essbereiches. Des Weiteren haben wir ein Gästezimmer und ein Gäste-WC mit Dusche. Im Dachgeschoss hat man eine offene Galerie mit Blick ins Wohnzimmer und Zugang zur Dachterrasse (ca. 40 m²), drei Zimmer und ein Vollbad. Der Spitzboden besitzt ca. 25 m².
Mietkonditionen:
Bitte beachten Sie, dass eine Mietbindung von 18 Monaten besteht. Die Mietanpassung erfolgt entsprechend der Entwicklung des Lebenshaltungsindex.
Lage
Die Wohnung befindet sich in einem Wohn- und Geschäftshaus in der Arsenalstraße. Einkaufsmöglichkeiten, Ärzte, öffentlicher Nahverkehr, Restaurants, Kino usw. befinden sich in unmittelbarer Nähe und sind in wenigen Gehminuten erreichbar.
Ausstattung
Einbauküche, Duschbad im 2. Obergeschoss, Vollbad mit freistehender Wanne, ebenerdiger Wellnessdusche, Bidet sowie Handtuchheizkörper im Dachgeschoss, Einbauschränke in mehreren Räumen, teilweise elektrische Dachfenster, Dielenfußboden, Stäbchenparkett (Massivparkett), große Dachterrasse
Details
- Zimmer insgesamt: 5
- Heizungsart: Zentralheizung
- Anzahl Etagen: 4,0
- Etage: 2
- Zusatzinformation zur Lage: Altstadt
- Kaltmiete: 2.100 €
- monatl. Betriebs-/Nebenkosten: 200 €
- monatl. Heizkosten: 250 €
- Kaution: 6.300 €
- Befeuerung: Gas
- Bodenbelag: Fliesen, Parkett, Dielen
- Badausstattung: Dusche, Badewanne, Bidet
- Baujahr: 1864
- Zustand: gepflegt
- Immobilie ist verfügbar ab: sofort






















