Zu Verkaufen €349.000 - Einfamilienhaus
Objektbeschreibung
Das im Jahre 2000 erbaute Einfamilienhaus, befindet sich auf einem ca. 2.916 m² großen Grundstück in ruhiger Randlage von Venzkow.
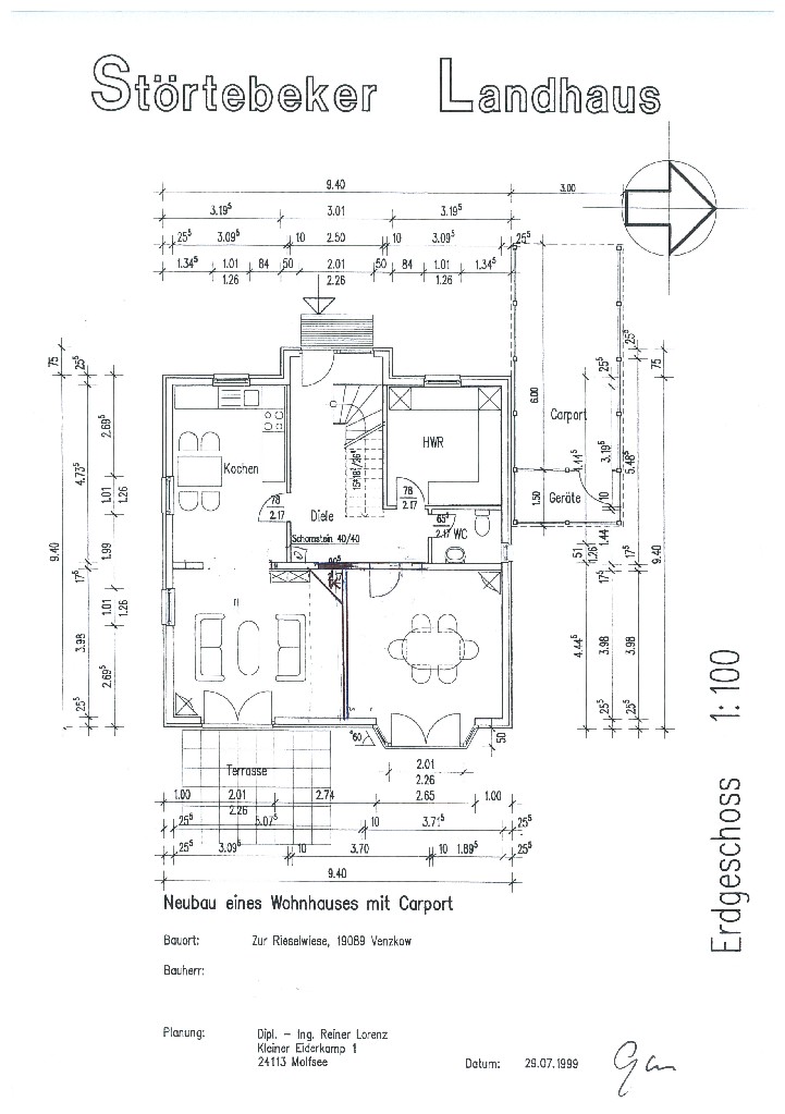
Das Haus betritt man über die Eingangsdiele und kommt von dort geradeaus durch eine doppelflüglige Tür in das Wohnzimmer. Linkerhand, vor dem Wohnzimmerzutritt befindet sich das Gäste-WC und in der Hauswirtschaftsraum, der auch einen Ausgang zum Carport hat, um Einkäufe unkompliziert ins Haus zu bekommen. Rechterhand gelangt man in die Küche und von dort in das hofseitige Esszimmer mit Kamin und Austritt auf die überdachte Terrasse in Ostausrichtung.
Des Weiteren gelangt man über eine Holztreppe in das Obergeschoss mit zwei Schlafzimmern, einem Bad mit Eckwanne und Dusche. Ein mögliches drittes Zimmer im Dachgeschoss ist zum Flur geöffnet und dient als offene Leseecke. Dieser Bereich kann selbstverständlich wieder geschlossen werden und dann als Zimmer genutzt werden. Die Diele und die Küche im Erdgeschoss besitzen eine elektrische Fussbodenheizung. Das Bad im Dachgeschoss hat eine Fussbodenerwärmung über den Heizwasserrücklauf.
Im Außenbereich befindet sich links neben dem Haus ein Carport mit sich anschließender Werkstatt und rechts neben dem Haus ein langgezogener einfacher Schuppen als Unterstell- und Lagermöglichkeit. Das Grundstück fällt nach hinten leicht ab und besitzt dort einen kleinen Teich, der derzeit kein Wasser führt. Weiter befindet sich auf dem hinteren Grundstück ein eingezäunter Bereich mit Schuppen für die bestehende Geflügelhaltung.
Das Grundstück ist bepflanzt mit diversen Blumen, Himbeer-, Johannes- und Stachelbeersträuchern, sowie einem Birnenbaum, einer Süßkirsche und zwei Apfelbäumen. Ansonsten ist das Grundstück überwiegend mit Rasen bepflanzt, besitzt einen Vorgarten, einen Wäscheplatz und einen Gemüsegarten.
Erdgeschoss: Diele, Wohnzimmer, Küche mit EBK, Esszimmer, Gä-WC, HWR, ca. 76,71 m² Wfl. zzgl. Terrassenfläche
Dachgeschoss: Flur mit offener Leseecke, zwei Schlafzimmer, Bad mit Eckwanne und Dusche, ca. 60,87 m² Wfl.
Lage
Venzkow, erstmals 1330 urkundlich erwähnt, liegt ca. 29 Fahrkilometer östlich von Schwerin und gehört zur Gemeinde Demen. Die Gemeinde wird durch das ca. 11 km entfernte Amt Crivitz verwaltet.
Durch das Gemeindegebiet fließt die Warnow, mit ihrem romantischen Warnowtal, welches ein nachgefragtes Paddelrevier ist. Der bekannte Winston Golfplatz befindet sich in unmittelbarer Nähe.
Das Landschaftsschutzgebiet mit seinen vielen kleinen Seen ist bekannt durch seine ausgedehnten Waldgebiete, wie z.B. den Venzkower Tannen oder den Kobander Tannen
Ausstattung
Gastherme (Bj. 2000) mit Flüssiggas, Küche und Diele mit elektr. Fußbodenheizung, Bad im DG mit Fußbodenerwärmung, Kamin, Küche mit EBK, Bad mit Wanne und Dusche, Gä-WC, Fliesen, Teppichboden, Vinyldesignboden, Carport mit Werkstatt, Geflügelstall
Details
- Grundstücksfläche: 2,92 m²
- Zimmer insgesamt: 5
- Anzahl Stellplätze: 3
- Heizungsart: Zentralheizung
- Anzahl Etagen: 2,0
- Zusatzinformation zur Lage: Venzkow
- Kaufpreis: 349.000 €
- Courtage: 3.57 %
- Anzahl Carport-Stellplätze: 3
- Terrassen: 1
- Art der Ausstattung: Standard
- Befeuerung: Flüssiggas (eigener Tank)
- Bodenbelag: Fliesen
- Badausstattung: Badewanne
- Stellplatzart: Carport
- Baujahr: 2000
- Zustand: gepflegt
- Immobilie ist verfügbar ab: nach Vereinbarung



















